Top.Mail.Ru

Баня Дерута

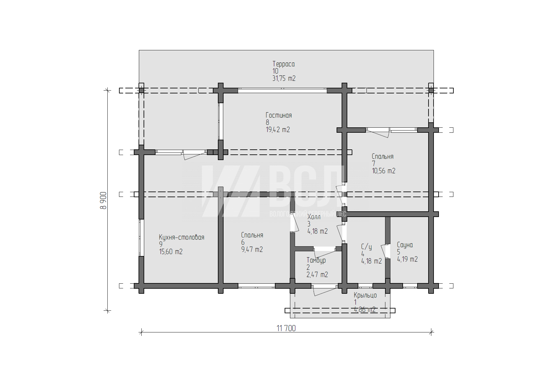
Одноэтажная баня из клееного бруса «Дерута» — это просторное и комфортное место для отдыха большой семьей или компанией. Баня площадью больше 100 кв.м. имеет парилку с выходом в санузел, кухню-столовую, гостиную и две спальни. Открытая терраса позволяет наслаждаться свежим воздухом после водных процедур в любую погоду. Планировка данной бани настолько комфортна и продумана, что позволяет взять её за основу для строительства небольшого коттеджа из клееного бруса. Проект выполнен в современном стиле и удачно впишется даже на небольшой земельный участок.

5 525 000 р.

Первый этаж

План
.

Почему строить с ВСЛ — лучшее решение?

Расширенная комплектация

которая включает домокомплект со всеми необходимыми материалами и деталями для сборки, а так же вспомогательными конструкциями

«Первая» цена

Мы сами являемся заготовителями леса, поэтому гарантируем лучшую цену на древесину

Отборное качество

благодаря хранению северного леса в надлежащих условиях на производственной базе

Берем все на себя

сами решим вопросы по доставке и разгрузке сруба, в том числе на участке без подъездных путей

Только штатные специалисты

во главе с бригадиром, контролирующим ход строительства на каждом объекте

Сопровождение до сдачи

всегда на связи, готовы ответить на любые вопросы, продемонстрировать готовность и проконсультировать