Коттедж Вектор
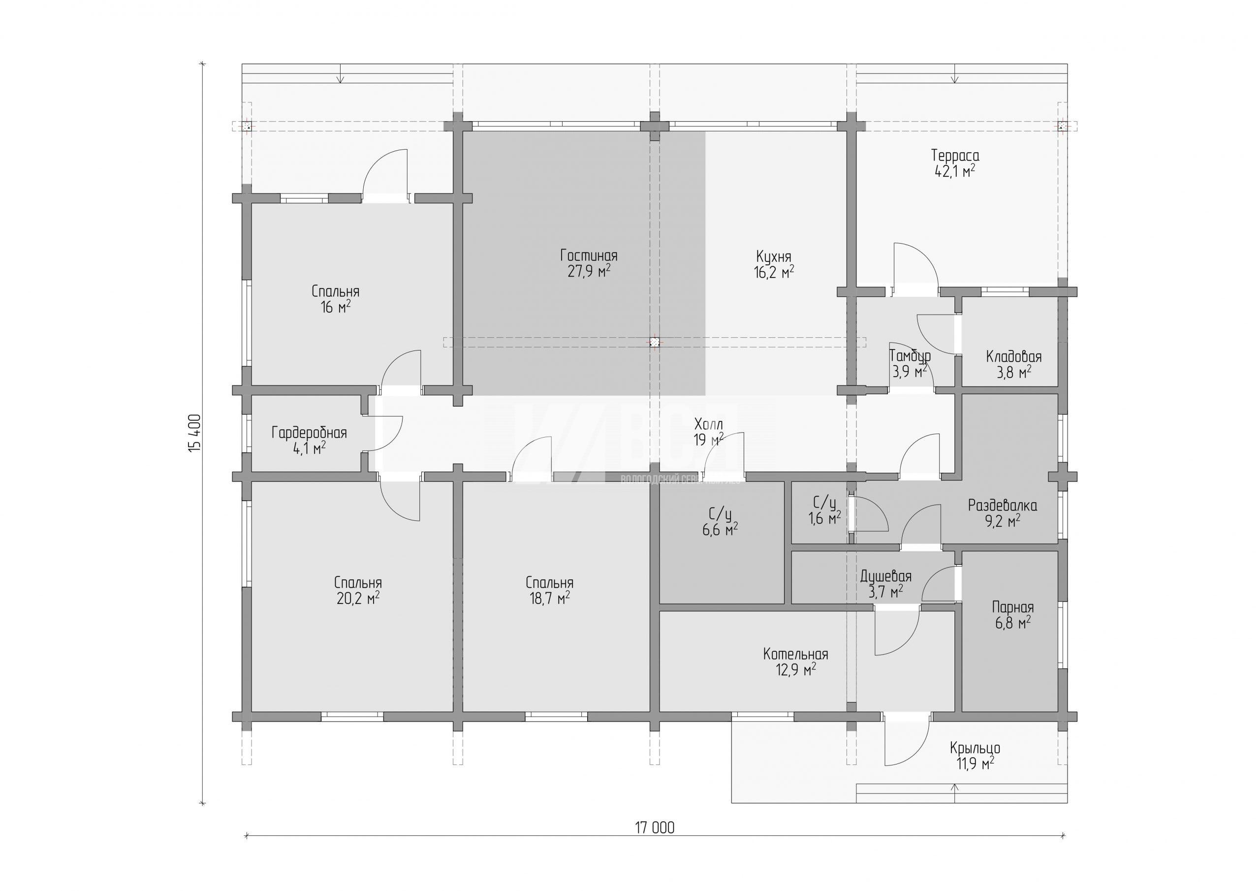
Одноэтажный коттедж из клееного бруса «Вектор» представляет собой современный и стильный дом для жильцов, ценящих простор и грамотные планировочные решения. Изюминкой проекта дома является большая гостиная с вторым светом, совмещенная с кухней-столовой. В доме имеется три больших спальни, гардеробная, кладовая, котельная, два санузла, а также собственная сауна. Этот дом из клееного бруса станет отличным загородным решением и может использоваться как для круглогодичного проживания, так и для комфортного дачного отдыха.


Почему строить с ВСЛ — лучшее решение?
Расширенная комплектация
которая включает домокомплект со всеми необходимыми материалами и деталями для сборки, а так же вспомогательными конструкциями
«Первая» цена
Мы сами являемся заготовителями леса, поэтому гарантируем лучшую цену на древесину
Отборное качество
благодаря хранению северного леса в надлежащих условиях на производственной базе
Берем все на себя
сами решим вопросы по доставке и разгрузке сруба, в том числе на участке без подъездных путей
Только штатные специалисты
во главе с бригадиром, контролирующим ход строительства на каждом объекте
Сопровождение до сдачи
всегда на связи, готовы ответить на любые вопросы, продемонстрировать готовность и проконсультировать